Situated in the heart of Southeast Ireland, Knocktopher is a quaint rural village which is c. 20 minutes outside Kilkenny City, an important tourist destination, with Kilkenny Castle being one of the most popular tourist attractions in the country. In addition to Kilkenny City’s historic relevance, the area is rich in art and cultural significance due to the exemplary glass and pottery craft businesses based in and around the area. The Kilkenny Design Yard is home to many excellent businesses in this realm, including potters, leather goods designers, goldsmiths and silversmiths. Kilkenny City is home to numerous excellent cafes, restaurants and traditional Irish pubs and boasts a vibrant nightlife. Knocktopher Village is adjacent to Thomastown, where there is a frequent train service to and from Dublin Heuston Station and Waterford City. The famous Mount Juliette Estate is also located nearby. Access to and from Dublin is via the Junction 10 on the M9 motorway, which is c. 2 km from the village.
Located within a short stroll of Knocktopher Village. 10 minutes’ drive to Thomastown and Mount Juliette Estate and Golf Course. Close to historic Kilkenny City. Equidistant from Kilkenny City and Waterford City. Easily accessible to M9 motorway.
Knocktopher Abbey is one of the finest examples of High Victorian Gothic architecture in the Southeast of Ireland.
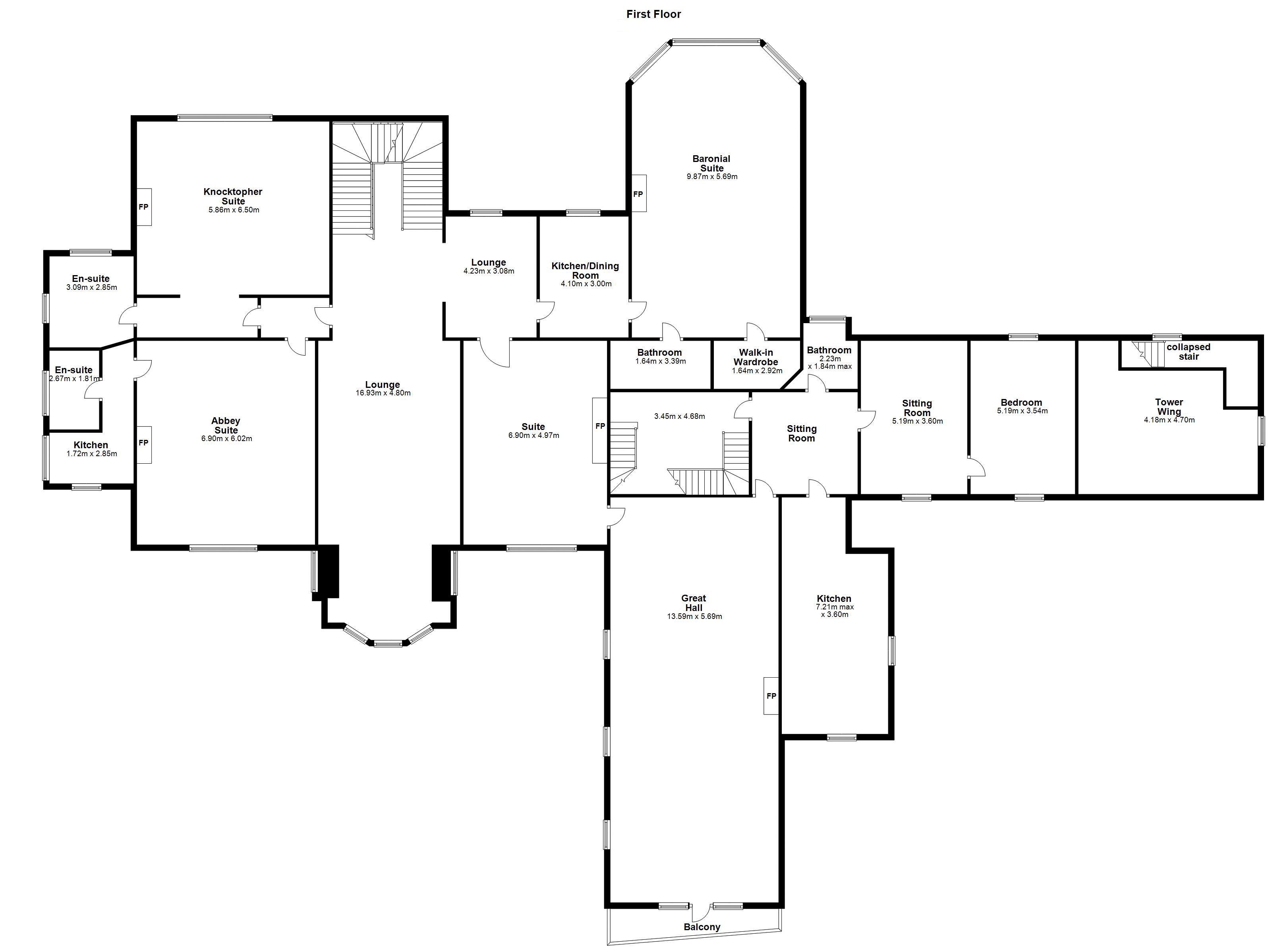
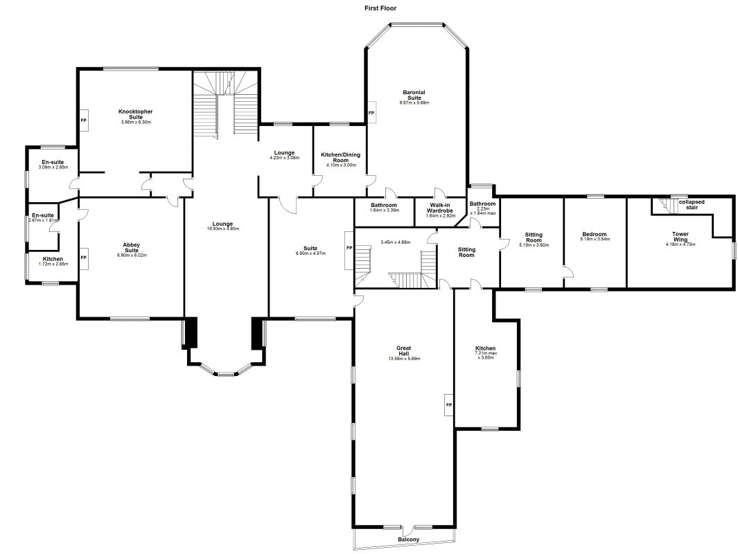
Total Accommodation: c. 1866 sq m / 20,085 sq ft.
Comprising: Abbey Building: c. 1381 sq m / 14,865 sq ft and Converted stables/coach houses divided into seven self-contained units (c. 485 sq m/ 5224 sq ft.)
Accessed through limestone pillars and approached by a winding gravel drive which is flanked on either side by mature woodland, Knocktopher Abbey is set amidst c. 11.5 acres of grounds. The woodland and the stone wall boundary fronting onto the R699 in Knocktopher ensure an excellent sense of privacy at the property. The Abbey is set amidst exquisite, landscaped gardens which incorporate pleasure walks, a yew tree lined walk and many spectacular specimens of oak, maple and sycamore trees. The grounds also feature an embedded Celtic cross garden design, serpentine flowerbeds and a tarmacadam tennis court. The imposing façade of this very fine period building incorporates many signature features of the era, including pointed arches, lancet windows and pyramidal roofed porch tower. The presence of the remains of the first Carmelite Friary in Ireland within the property is also a very special detail, along with the Holy Trinity Well, dating back to 1356, which continues as a feature in the bistro, located on the ground floor of the main abbey building.
The site of Knocktopher Abbey boasts an intriguing history. Its origins date back to the 14th century when it was established by James Butler, the 2nd Earl of Ormond as a settlement and friary of the Carmelite order, which existed there until 1536. A section of the old abbey abuts an earlier Norman castle, part of which can still be seen at the property today. This substantial detached, three-bay, two-storey with dormer attic property was rebuilt in 1866 following a fire and it is constructed of deep grey limestone, offset by glistening granite, producing a very pleasing two-tone palette. Built on a T-shaped plan, Knocktopher Abbey is centred on a single-bay, three storey tower. The main entrance in the tower, located to the norther elevation, features a cut-granite surround framing diagonal timber boarded double entrance doors, which sit between two lancet windows. This central entrance opens into a vestibule. The rear, south facing elevation is of three-bay, two-storey design and is centred on single-bay two-storey gabled breakfront. There is a square-headed central door opening resting between two square-headed cusped lancet window openings and the cut-granite block-and-start surround frames a diagonal timber boarded entrance door, over which sits the crested motto ‘Medio Tuttissimus Ibis. The lancet window openings throughout Knocktopher Abbey merit special mention and include many tripartite and bipartite arrangements, complete with cut granite block-and-start surrounds and chamfered reveals framing one-over-one sash windows. The building also boasts a pitched slate roof, cast-iron rainwater goods and cut granite sills and thresholds amongst many other special period features. The impressive main entrance foyer retains many very fine original details, one of which is the magnificent main staircase, which features exquisite Solomonic balusters supporting carved timber banisters and terminates in Gothic style timber newels. Many of the rooms at Knocktopher Abbey retain superb features from the Victorian era including moulded plasterwork cornice, carved timber surrounds to the window and door openings, which frame original timber panelled doors. The Great Hall is an excellent example of interior architecture from the era, with a spectacular barrel-vaulted ceiling. The abbey also contains numerous exceptional examples of beautiful ornate fire surrounds, fabricated from local marble and stone.
A splendid example of High Victorian Gothic architecture. Detached period residence on c. 11.5 acres of grounds. Abbey accommodation extending over three floors, measuring c. 14,865 sq ft/ 1380 sq m. Additional guest accommodation in converted stables/coach houses divided into 7 self-contained units (c. 485 sq m/ 5224 sq ft. ) Limestone and granite construction. Important historic building retaining many exceptional gothic architecture features. Would suit bespoke guest accommodation, charming wedding venue and many other uses. Includes impressive Great Hall. Vaulted ceiling bistro with separate access. Including historically significant Tower wing (in need of restoration). Tranquil parkland setting. Tennis court. Landscaped gardens featuring mature trees, flowerbeds and pleasure walks.
OFCH in Abbey Building. Electric heating in Cottages.
Services: Mains water supply and two septic tanks.
The Abbey’s accommodation is laid out over three floors, and includes a very fine entrance foyer, reception area, large open plan bar / recreation area with customer toilets, commercial kitchen and 8 individual suites, each containing its own kitchen/lounge area, bedroom and separate bathroom. In addition, there is the truly magnificent Great Hall, the Bistro and numerous ancillary rooms such additional staff quarters, lounge areas, laundry and service rooms. The ground floor accommodation currently comprises the following: entrance lobby, reception/office, residents’ lounge/recreation area, customer bathrooms and an exceptional bedroom suite overlooking the gardens with feature bay window. This suite contains a kitchen cum dining space, an open plan living / bedroom area and bathroom. In addition to the main guest accommodation on the ground floor, the property also boasts a bistro with separate access to the front of the abbey. This level also includes a large commercial kitchen with a vintage AGA, ancillary storage rooms, boiler room and access to the back stairwell. At this level there is also access to the tower wing, which is in need of restoration. At first-floor level, the accommodation comprises a large landing / lounge area with feature bay window, three guest suites which are self-contained with kitchen and bathrooms, a staff lounge area, staff accommodation and the Great Hall with separate kitchen. The Great Hall is complete with a magnificent barrel-vaulted ceiling and this spectacular room would suite a myriad of uses, including wedding ceremonies, banquets and exhibitions. The second-floor accommodation includes a further five suites of varying sizes, and this level also includes ancillary rooms used for storage and laundry.
The Cottages at Knocktopher Abbey The converted stable block and coach house buildings located to the western side of the Abbey building contains a further seven self-catering cottages. These bijoux cottages are a mix of 1 and 2 bedroom units and are of single and two storey layout. These beautiful cut stone buildings have been sympathetically converted to seven unique units, each of which has been used as holiday rental properties since conversion in the 1990’s. The current owners obtained a grant of planning in 2002 to convert the derelict farm buildings located within the grounds into 13 units and to construct a further 23 new cottages. However, this planning permission was never acted upon and has since lapsed.
Submit an enquiry and someone will be in contact shortly.
By setting a proxy bid, the system will automatically bid on your behalf to maintain your position as the highest bidder, up to your proxy bid amount. If you are outbid, you will be notified via email so you can opt to increase your bid if you so choose.
If two of more users place identical bids, the bid that was placed first takes precedence, and this includes proxy bids.
Another bidder placed an automatic proxy bid greater or equal to the bid you have just placed. You will need to bid again to stand a chance of winning.